Oferta
Ultraglide
- un sistem cu performanțe termice îmbunătățite, utilizat pentru realizarea structurilor glisante și liftant-culisante
- structurile glisante UG sunt destinate clădirilor rezidențiale, în principal clădirilor private și publice
- sistemul este adaptat la ultimele cerinţe privind performanţa termică, estetică şi siguranţa; opțiuni de sistem disponibile: versiunea UG cu prag scăzut, UG – soluție unghiulară de 90°
- prin parametrii săi, sistemul Ultraglide face posibilă proiectarea structurilor cu dimensiuni variate ale panourilor glisante; dimensiuni maxime structură disponibile în sistem: înălțime panou – Hs = 3300 mm; lățime panou – Bs = 3500 mm.
- sistemul Ultraglide face posibilă realizarea de ferestre și uși glisante mari – dar stabile; greutate maximă a panoului: 250 kg – opțiune de alunecare; 400 kg – opțiune de ridicare-glisare
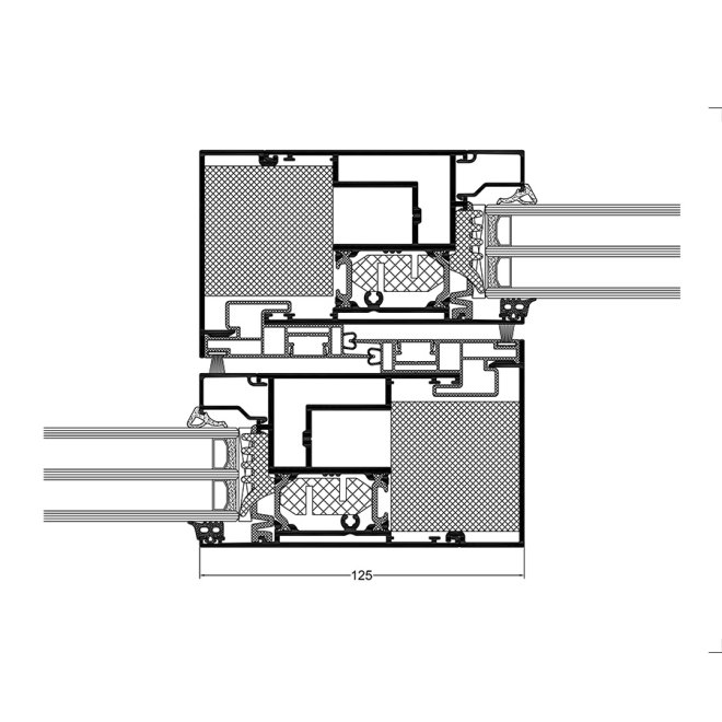
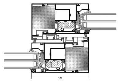
- design structură: 3, 5 și 7 camere ale tocului
- variante posibile cu două, trei și patru rame pe sistemul cu două șine
- profile potrivite pentru instalarea diferitelor tipuri de feronerie cu blocare manuală disponibile pe piață și dispozitive automate
- pot fi utilizate diverse tipuri de umpluturi (geamuri duble și triple)
- sistem ID adaptat la ultimele cerinţe referitoare la performanţa termică; sistemul este echipat cu un separator cu lățimea de 22 mm/28 mm îmbunătățit cu fibră de sticlă, inserții termice și inserții sub sticlă pentru a îmbunătăți performanța termică în secțiune transversală; opțiuni disponibile:UG, UGi și UGi+
- utilizat pentru realizarea geamurilor mari, care asigură iluminare naturală în interiorul clădirii, facilitând amenajarea interioară, având asigurate stabilitatea, funcționalitatea și lipsa greutății structurii;
- există posibilitatea de utilizare a sistemului Flyscreen (Flyscreen – plase împotriva muștelor/insectelor reprezintă o protecție practică și extrem de funcțională împotriva insectelor)
- o gamă largă de culori disponibile – paleta RAL (Qualicoat 1518), culori structurate, imitaţie lemn Aliplast Wood Color Effect , Aliplast Loft View – imitatie piatra (Qualideco PL-0001), culori anodizate (Qualanod 1808), bicolore
SPECIFICAȚII TEHNICE
| SISTEM | MATERIAL | ADÂNCIME RAMĂ | ADÂNCIME CERCEVEA | GROSIME GEAM | ACUSTIC | GREUTATE PANOU | TIPURI DE UȘI |
| UG | aluminiu/termoizolație | 153-239 mm | 67 mm | panou 14-52 mm | 43 (-2,-6) dB | până la 250 kg opțiune glisare / până la 400 kg opțiune ridicare și glisare | glisare, ridicare și glisare |
| UG i+ | aluminiu/termoizolație | 153-239 mm | 67 mm | panou 14-52 mm | 43 (-2,-6) dB | până la 250 kg opțiune glisare / până la 400 kg opțiune ridicare și glisare | glisare, ridicare și glisare |
PERFORMANȚĂ
| SISTEM | IZOLAȚIE TERMICĂ UF* | Permeabilitate la aer | REZISTENȚĂ LA VÂNT | ETANȘEITATE APĂ |
| UG | Uf de la 1,45 W/m2K | Clasa 4; EN 12207 | Clasa C4 (1600 Pa); EN 12210 | Clasa 9A (600 Pa); EN 12208 |
| UG i+ | Uf de la 1,13 W/m2K | Clasa 4; EN 12207 | Clasa C4 (1600 Pa); EN 12210 | Clasa 9A (600 Pa); EN 12208 |
*izolarea termică depinde de o combinație de profile și grosimea umpluturii
