Oferta
Ecoslide
- un sistem de uși glisante fără izolare termica
- sistem destinat proiectării elementelor arhitecturale de închidere exterioare sau interioare care nu necesita izolare termică
- sistemul poate avea două, trei sau patru șine pentru a proiecta instalații cu 2, 3, 4 și 6 panouri.
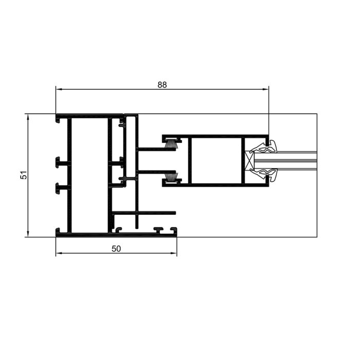
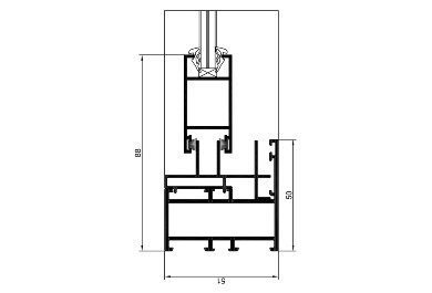
- grosimea de umplere posibilă: 1-12 mm
- cărucioarele mobile pentru panouri sunt fixate în interiorul cercevelelor
- sistemul Ecoslide este compatibil cu alte sisteme oferite de Aliplast
- există posibilitatea de utilizare a sistemului Flyscreen (Flyscreen – plasele contra muştelor/insectelor reprezintă o protecție practică și extrem de funcțională împotriva insectelor)
- o gamă largă de culori disponibile – paleta RAL (Qualicoat 1518), culori structurate, imitaţie lemn Aliplast Wood Color Effect , Aliplast Loft View – imitatie piatra (Qualideco PL-0001), culori anodizate (Qualanod 1808), bicolore
SPECIFICAȚII TEHNICE
| SISTEM | MATERIAL | ADÂNCIME RAMĂ | ADÂNCIME CERCEVEA | GROSIME GEAM | GREUTATE PANOU | TIP UȘI |
| ES | aluminiu/poliamidă | 54-106,5 mm | 18,5-21,5 mm | 4-12 mm | 40 kg | glisante |
