Oferta
Genesis 65
Nou
- Sistem de ferestre cu trei camere și performanță sporită de izolație termică
- Parametrii termici ai ferestrei Genesis 65 îndeplinesc cerințele aplicabile începând cu 2021 (Uw începând de la 0,90)
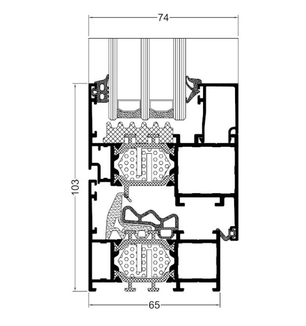
- Sistemul Genesis 65 se bazează pe un sistem cu o ramă cu o adâncime de 65 mm
- Gamă largă de profile oferite ca parte a sistemului Genesis 65, permițând proiectarea de ferestre și vitrine moderne, cu funcționalitate și estetică ridicate
- Sistemul Genesis 65 utilizează materiale izolatoare moderne: pe lângă garnitura centrală clasică a ferestrei pentru o etanșeitate ridicată (infiltrare a aerului, etanșeitate la apă), a fost proiectată o garnitură termică suplimentară pentru a crește performanța de izolație termică a ferestrelor
- Este posibilă selectarea diferitelor finisaje ale profilelor (inclusiv profile de renovare) în sistem, ceea ce va conferi structurii ferestrei un caracter individual
- Sistemul permite, de asemenea, construirea de conexiuni de colț la 90 de grade, integral din sticlă
- Sistemul de ferestre Genesis 65 stabilește un nou standard pentru izolația ferestrelor, menținând în același timp cea mai înaltă ergonomie de utilizare și estetica modernă a profilelor
- Opțiunea Genesis OUT disponibilă - ferestre cu deschidere exterioară
- Opțiunea Genesis SU disponibilă - opțiunea de cercevea ascunsă
- Genesis 65 este un sistem destinat proiectării structurilor de ferestre în clădiri publice, precum și în clădiri rezidentiale.
- Este posibilă instalarea plaselor de țânțari, a sistemului anti-insecte și a plaselor anti-insecte din sistemul Aliplast
- Gamă largă de culori – paleta RAL (Qualicoat 1518), culori texturate, Aliplast Wood Colour Effect – culori asemănătoare lemnului, Aliplast Loft View – culori care imită suprafețele de piatră (Qualideco PL-0001), culoare anodizată (Qualanod 1808), bicoloră
SPECIFICAȚII TEHNICE
| SISTEM | MATERIAL | ADÂNCIMEA TOCULUI | ADÂNCIMEA CANATULUI | GAMĂ DE VITRAJE | TIP DE FERESTRE |
| Fereastră GENESIS 65 (GR) | aluminiu/poliamidă | 65 mm | 74 mm | fix 4 - 49 mm, fereastră 4 - 55 mm | FIX, R, U, RU |
PERFORMANȚĂ
| SISTEM | GENESIS 65 i+ | GENESIS 65 i | GENESIS 65 |
| IZOLAȚIE TERMICĂ UF* | Uf de la 0,99 W/m2K | Uf de la 1,47 W/m2K | Uf de la 1,703 W/m2K |
Izolația termică depinde de combinația de profile și grosimea umpluturii
